BORDEAUX – TONDU. L’agence GRANGE-DELMAS vous propose à la vente cette belle maison en pierre rénovée, idéalement situé à proximité de l’hyper centre entre les quartiers Saint-Genès et Mériadeck.
Au rez-de-chaussée, l’entrée avec carreaux de ciment dessert une double belle réception avec cheminée, corniches et une véranda pleine de charme ouvrant sur la terrasse et le jardin bien orienté. La cuisine indépendante a également un accès au jardin. Buanderie et wc.
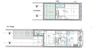
Un escalier en pierre mène au 1er étage avec 2 grandes chambres ayant chacune une salle de bain ou salle d’eau attenante.
Au niveau supérieur, une grande chambre supplémentaire..
Une cave en sous-sol complète cette agréable maison familiale rénovée ayant conservé ses belles prestations d’origine, proche du centre ville, à moins de 10 mn à pied de l’ensemble scolaire St Genès et du lycée Magendie .
Prix : 703.000 euros (4.93 % honoraires TTC à la charge de l’acquéreur.)