Appartement avec terrasses et stationnement - SAINT SEURIN
BORDEAUX

1 050 000€
-
Ref. 352

Description de l'annonce

BORDEAUX – SAINT SEURIN. L’agence GRANGE DELMAS vous propose à la vente un superbe appartement neuf issu d’une réhabilitation, au 1er étage d’une petite copropriété, dans une rue calme du quartier Saint Seurin.
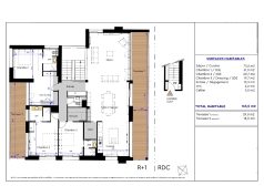
L’entrée avec un remarquable mur de vitraux dessert un vaste espace séjour – salle à manger de 73m² avec parquet, cuisine ouverte et cellier, baigné de lumière, donnant sur une belle terrasse bien exposée.
Le coin nuit dispose de 3 chambres avec chacune une salle d’eau privative, dressing.
Un stationnement extérieur et un local vélos sécurisé complètent ce bien aux beaux volumes et aux prestations de standing .
Proche des écoles, des commerces et des transports.
Prix : 1.050.000EUR (5.00 % honoraires TTC à la charge de l’acquéreur.)

Fiche signalétique

Année de construction
2020
Surface Habitable
164 m2
Surface Séjour
30 m2
Nombre de pièces
4
Nombre de chambres
3
Salle de bain
1
Salle d’eau
1
WC
1
Chauffage
Individuel Electrique
Parking
1
Cave
1
Terrasse
1

Vous souhaitez avoir plus d'informations sur ce bien ?